현장진행상황

집이 지어지는 과정을 확인하세요.

[근생다가구주택] 

경기도 파주시 와동동

공정률

0
  • 0
    착수
  • 01
    기획
    설계
  • 02
    철거
    공사
  • 03
    토목
    공사
  • 04
    기초
    공사
  • 05
    골조
    공사
  • 06
    단열
    공사
  • 07
    외장
    공사
  • 08
    내장
    공사
  • 09
    부대
    공사
  • 10
    마감
    공사

SUMMARY


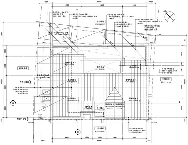
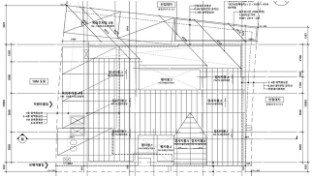
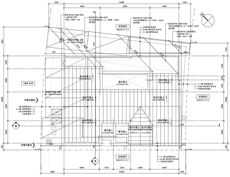
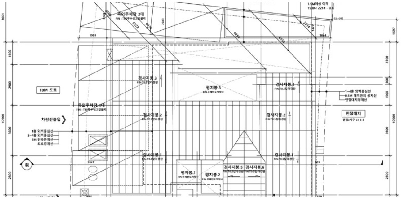
대 지 면 적258.00 (78.04 PY)

건 축 면 적154.56 (46.75 PY)

연 면 적460.37 (139.35 PY)

규 모지상4층

주 차 대 수계획 6대

용 도근생다가구주택


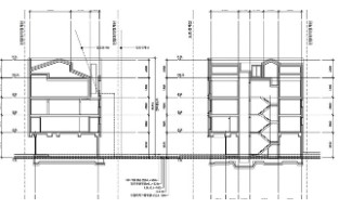
SPEC 


시 공철거+토목+건축 공사

구 조철근콘크리트조

외 벽그레이톤석재

내 부건축주 지정 마감

지 붕

창 호알루미늄 창호

공 용 실타일 마감

[근생다가구주택] 경기도 파주시 와동동

01. 기획설계


02. 철거공사


03. 토목공사


04. 기초공사


05. 골조공사


06. 단열공사


07. 외장공사


08. 내장공사


09. 부대공사


10. 마감공사


공정률

0
  • 0
    착수
  • 01
    기획설계
  • 02
    철거공사
  • 03
    토목공사
  • 04
    기초공사
  • 05
    골조공사
  • 06
    단열공사
  • 07
    외장공사
  • 08
    내장공사
  • 09
    부대공사
  • 10
    마감공사

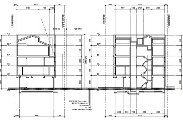
SUMMARY


대 지 면 적 258.00 (78.04 PY)

건 축 면 적 154.56 (46.75 PY)

연 면 적 459.37 (138.96 PY)

규 모 지상 4층

주 차 대 수 계획 6대 

용 도 근린생활시설


SPEC


시 공철거+토목+건축 공사

구 조철근콘크리트조

외 벽롱브릭벽돌

내 부건축주 지정 마감

지 붕칼라강판

창 호알루미늄 창호

공 용 실타일 마감

01. 기획설계


02. 철거공사


03. 토목공사 


04. 기초공사 


05. 골조공사 


06. 단열공사 


07. 외장공사


08. 내장공사


09. 부대공사 


10. 마감공사


(주)제이엔와이종합건설

대표 : 배준성   l   사업자번호 : 656-86-00980 

주소 : 서울특별시 서초구 서초대로 19길 10-19, 2층(방배동)

TEL : 1599-0415   l   FAX : 02-6499-0415 

E-MAIL : jnybuild@naver.com

대표 : 배준성   l   사업자번호 : 656-86-00980   l   주소 : 서울특별시 서초구 서초대로 19길 10-19, 2층(방배동)

TEL : 1599-0415   l   FAX : 02-6499-0415   l    E-MAIL :  jnybuild@naver.com