현장진행상황

집이 지어지는 과정을 확인하세요.

[근린생활시설]

서울시 송파구 송파동 

공정률

0
  • 0
    착수
  • 01
    기획
    설계
  • 02
    철거
    공사
  • 03
    토목
    공사
  • 04
    기초
    공사
  • 05
    골조
    공사
  • 06
    단열
    공사
  • 07
    외장
    공사
  • 08
    내장
    공사
  • 09
    부대
    공사
  • 10
    마감
    공사

SUMMARY


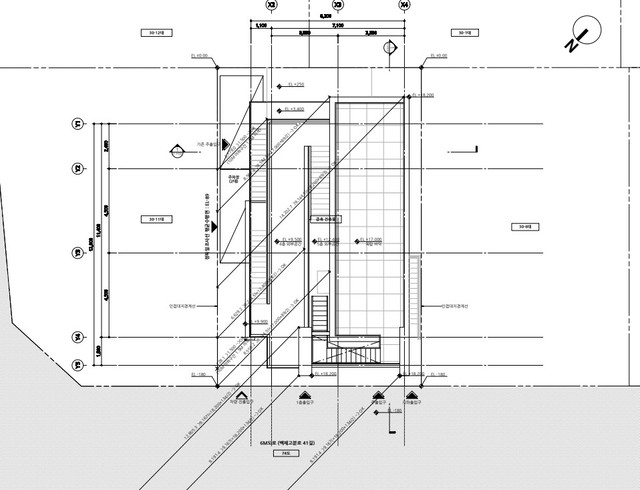
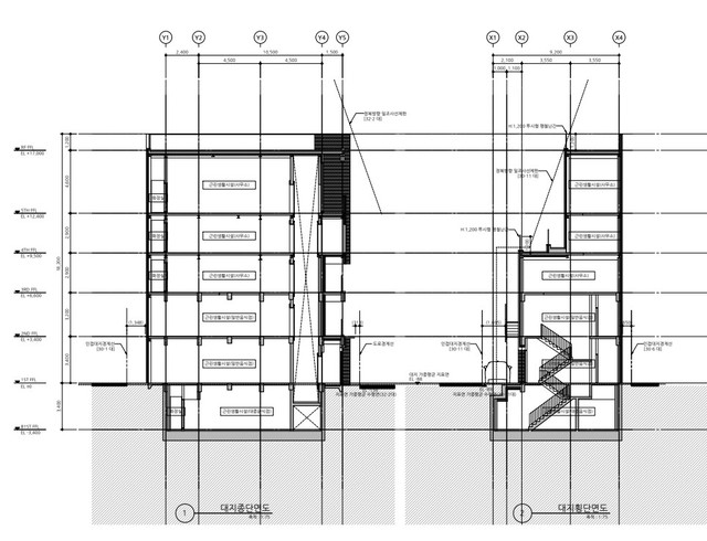
대지면적 : 185.20㎡ (56.02 PY)

건축면적 : 110.86㎡ (33.53 PY)

연면적   : 465.55㎡ (140.83 PY)

규모     : 지하 1층 / 지상 5층

주차대수 : 옥외 2대

용도     : 근린생활시설

SPEC 


시 공 : 토목+건축 공사

구 조 : 철골조

외 벽 : 포세린타일

내 부 : 건축주 지정 마감

지 붕 : 지정마감

창 호 : 알루미늄 창호

공 용 실 : 도장 마감

01. 기획설계


02. 철거공사


03. 토목공사


04. 기초공사


05. 골조공사


06. 단열공사


07. 외장공사


08. 내장공사


09. 부대공사


10. 마감공사


[근린생활시설] 서울시 송파구 송파동

공정률

0
  • 0
    착수
  • 01
    기획설계
  • 02
    철거공사
  • 03
    토목공사
  • 04
    기초공사
  • 05
    골조공사
  • 06
    단열공사
  • 07
    외장공사
  • 08
    내장공사
  • 09
    부대공사
  • 10
    마감공사

SUMMARY


대지면적 : 185.20㎡ (56.02 PY)

건축면적 : 110.86㎡ (33.53 PY)

연면적   : 465.55㎡ (140.83 PY)

규모     : 지하 1층 / 지상 5층

주차대수 : 옥외 2대

용도     : 근린생활시설


SPEC


시 공 : 토목+건축 공사

구 조 : 철골조

외 벽 : 포세린타일

내 부 : 건축주 지정 마감

지 붕 : 지정마감

창 호 : 알루미늄 창호

공 용 실 : 도장 마감

01. 기획설계


02. 철거공사


03. 토목공사 


04. 기초공사 


05. 골조공사 


06. 단열공사 


07. 외장공사


08. 내장공사


09. 부대공사 


10. 마감공사


(주)제이엔와이종합건설

대표 : 배준성   l   사업자번호 : 656-86-00980 

주소 : 서울특별시 서초구 서초대로 19길 10-19, 2층(방배동)

TEL : 1599-0415   l   FAX : 02-6499-0415 

E-MAIL : jnybuild@naver.com

대표 : 배준성   l   사업자번호 : 656-86-00980   l   주소 : 서울특별시 서초구 서초대로 19길 10-19, 2층(방배동)

TEL : 1599-0415   l   FAX : 02-6499-0415   l    E-MAIL :  jnybuild@naver.com