현장진행상황

집이 지어지는 과정을 확인하세요.

[근린생활시설] 

서울시 강남구 논현동

공정률

0
  • 0
    착수
  • 01
    기획
    설계
  • 02
    철거
    공사
  • 03
    토목
    공사
  • 04
    기초
    공사
  • 05
    골조
    공사
  • 06
    단열
    공사
  • 07
    외장
    공사
  • 08
    내장
    공사
  • 09
    부대
    공사
  • 10
    마감
    공사

SUMMARY


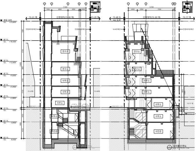
대지면적 : 204.70㎡ (61.92 PY)

건축면적 : 119.81㎡ (36.24 PY)

연면적    : 684.51㎡ (207.06 PY)

규모     : 지하2층 / 지상5층

주차대수 : 4대

용도     : 근린생활시설


SPEC 


시공 : 토목 + 건축 공사

구조 : 철근콘크리트조

외벽 : 지정석재+지정금속

내부 : 지정 마감

지붕 : 지정 도장마감

창호 : 알루미늄 창호

공용실 : 타일 마감

[근린생활시설] 서울시 강남구 논현동

01. 기획설계


02. 철거공사


03. 토목공사


04. 기초공사


05. 골조공사


06. 단열공사


07. 외장공사


08. 내장공사


09. 부대공사


10. 마감공사


공정률

0
  • 0
    착수
  • 01
    기획설계
  • 02
    철거공사
  • 03
    토목공사
  • 04
    기초공사
  • 05
    골조공사
  • 06
    단열공사
  • 07
    외장공사
  • 08
    내장공사
  • 09
    부대공사
  • 10
    마감공사

SUMMARY


대지면적 : 204.70㎡ (61.92 PY)

건축면적 :  119.81㎡ (36.24 PY)

연면적   : 684.51㎡ (207.06 PY)

규모     : 지하2층 / 지상5층

주차대수 : 4대

용도     : 근린생활시설



SPEC


시공 : 토목 + 건축 공사

구조 : 철근콘크리트조

외벽 : 지정석재+지정금속

내부 : 지정 마감

지붕 : 지정 도 마감

창호 : 알루미늄 창호

공용실 : 타일 마감


01. 기획설계


02. 철거공사


03. 토목공사 


04. 기초공사 


05. 골조공사 


06. 단열공사 


07. 외장공사


08. 내장공사


09. 부대공사 


10. 마감공사


(주)제이엔와이종합건설

대표 : 배준성   l   사업자번호 : 656-86-00980 

주소 : 서울특별시 서초구 서초대로 19길 10-19, 2층(방배동)

TEL : 1599-0415   l   FAX : 02-6499-0415 

E-MAIL : jnybuild@naver.com

대표 : 배준성   l   사업자번호 : 656-86-00980   l   주소 : 서울특별시 서초구 서초대로 19길 10-19, 2층(방배동)

TEL : 1599-0415   l   FAX : 02-6499-0415   l    E-MAIL :  jnybuild@naver.com